Listing
7955 Enoch Lake Circle
Lake Park, GA MLS: 153147
Property Description:
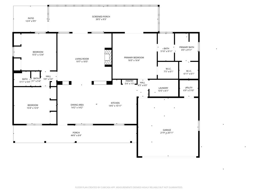
This charming home on Enoch Lake, just minutes from the Florida line, offers the perfect blend of peaceful retreat and everyday living. Situated on just over five acres, the property provides plenty of space to explore, along with beautiful water views and full lake access. Inviting front and rear porches create the perfect setting to relax and enjoy the surroundings. Inside, the open-concept layout seamlessly connects the kitchen, dining, and living areas, making it ideal for both entertaining and daily life. The spacious kitchen features abundant cabinetry and a large island, perfect for gatherings. The family room opens to a screened back porch and showcases a cozy fireplace with built-in cabinetry on either side. A split floor plan ensures privacy, with generously sized guest bedrooms sharing a hall bath. The dining room and kitchen are highlighted by stunning heart pine floors, adding warmth and character. The oversized laundry room includes unique custom shelving for added convenience. The primary suite offers two closets and a beautifully updated bathroom with refreshed dressing areas and a modern shower. Step outside to the fully screened back porch with tile flooring, where you can unwind while overlooking the property. Just beyond, Enoch Lake awaits, complete with a private boat dockperfect for fishing or simply enjoying the tranquil scenery. Whether you're looking for a weekend getaway or a full-time residence, this property offers comfort, space, and a true connection to nature.





